Four Seasons Resort Bali at Jimbaran Bay

フォーシーズンズ リゾート バリ アット ジンバラン ベイ

Jimbaran, Kuta Selatan, Bali 80361 Indonesia

成田発 ガルーダ・インドネシア航空 エコノミークラス利用
4泊6日旅行代金(朝食付)
Share:

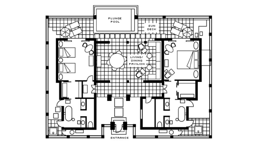
ダブルベッドとツインベッドを備えた2ベッドルーム ガーデンヴィラは、ファミリーやグループ滞在に最適です。リビング&ダイニングを挟んで配置されたベッドルームは、プライバシーを確保しつつ快適な滞在が可能です。緑豊かなガーデンに囲まれた広々としたヴィラにはプライベートプールも備わり、バリ島らしい優雅なリゾートライフを楽しめます。

マスターベッドルーム(イメージ)

ツインベッドルーム(イメージ)

広々としたアウトサイドリビング

フロアプラン(1例)

 / 

フォーシーズンズ リゾート バリ アット ジンバラン ベイ
他の部屋カテゴリー